Alassio, land with approved project for a villa.

  • Property typeBuilding Land
  • Price€ 180.000,00
  • Total rooms4
  • Bedrooms3
  • Bathrooms2
  • Surface114 mq

Building Land, Alassio, Wife

3 rooms, 2 bathrooms, 114 square meters

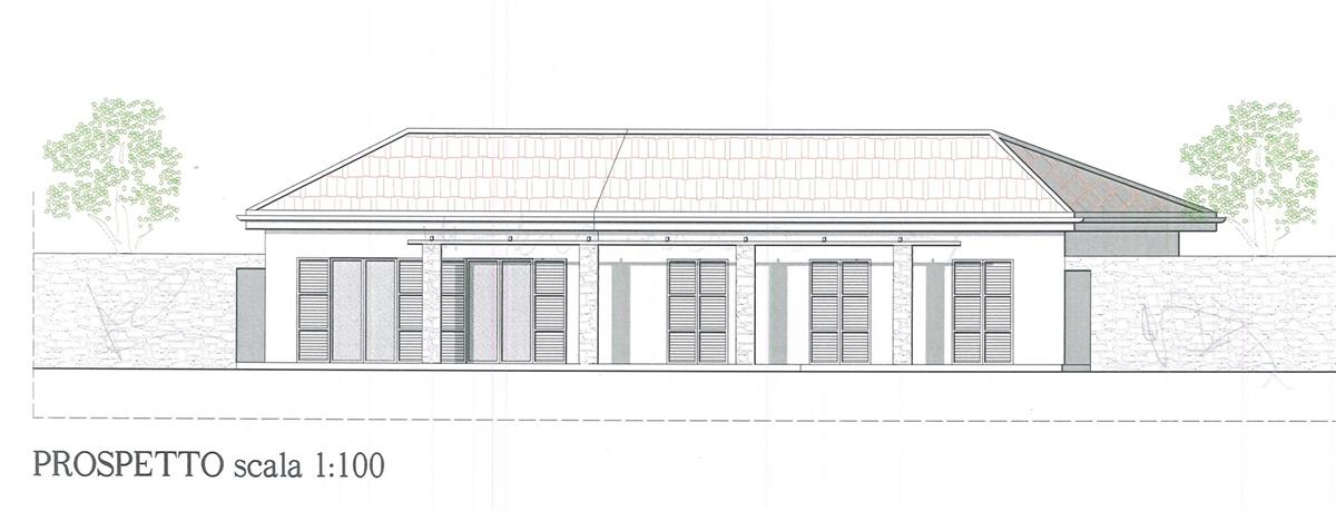
Alassio, at the foot of the hamlet of Moglio, offers for sale a plot of land measuring approximately 1,500 m², on which a single-story villa of approximately 114 m² is planned. The project includes a large living room with kitchenette, a bathroom for the living area, three bedrooms, another bathroom for the sleeping area, a hallway, and a storage room. An open porch is planned in front of the living room, creating a shaded outdoor area for a large terrace. A traditional four-pitched roof with traditional Ligurian tiles has been approved. A double parking space has been planned for the property, but there is nothing stopping you from requesting permission to build a 35 m² attached garage. The plot is divided into three easily accessible strips, and in my opinion, is ideal for installing a solar and photovoltaic panel system for hot water and electricity. The land is located south-facing and has a discreet sea view and a wide view of the Alassio hills.

Information

  • Ad code05VE38
  • CityAlassio
  • Type of contractSale
  • FloorEarth
  • Surface114 mq
  • Total rooms4
  • Bedrooms3
  • Bathrooms2
  • HeatingIndependent heating
  • Type of cuisineKitchenette
  • GardenPrivate
  • Box / Parking spaceUncovered parking space

Request information

If you'd like to learn more, fill out the form below.
Fields marked with an asterisk are mandatory

Name and Surname *
Email *
Telephone
Message *

Information note for sending communications

Similar ads...