Alassio, portion of house with garden 30 meters from the sea.

+15
  • Property typeApartment
  • Price€ 540.000,00
  • Total rooms6
  • Bedrooms3
  • Bathrooms2
  • Surface115 mq

Apartment, Alassio, Center

3 rooms, 2 bathrooms, 115 square meters

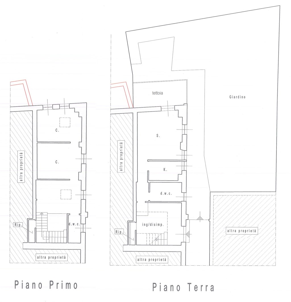
Alassio. Located in Borgo Barusso, a vibrant western village in Alassio, just 30 meters from the sea, we offer a rare opportunity to purchase a portion of a detached house with a private garden and no condominium fees. The property comprises two levels: the ground floor features an entrance hall, a kitchen, a living room, and a bathroom. The living room currently has a porch that could be converted into a living area. The first floor, accessed by an internal staircase, comprises two bedrooms and a bathroom, all overlooking a private garden of approximately 200 square meters with several citrus trees. There are two separate entrances, one for the house and one for the garden, which can also be reached by scooter or bicycle via a narrow alley typical of historic town centers. The house requires complete renovation, except for the roof, which is in excellent condition and equipped with electric skylights for lighting and ventilation.

Information

  • Ad code05VE31
  • CityAlassio
  • AddressVico Alfieri
  • Type of contractSale
  • FloorEntire building
  • Surface115 mq
  • Total rooms6
  • Bedrooms3
  • Bathrooms2
  • HeatingIndependent heating
  • Type of cuisineEat-in kitchen
  • GardenPrivate

Request information

If you'd like to learn more, fill out the form below.
Fields marked with an asterisk are mandatory

Name and Surname *
Email *
Telephone
Message *

Information note for sending communications

Similar ads...